El aeropuerto

Las tomas iniciales de la película tienen lugar en un aeropuerto, donde la banda de chicos DuJour (interpretada por Seth Green, Donald Faison, Breckin Meyer y Alexander Martin) está llena de admiradores en una escena que recuerda la llegada de los Beatles a Estados Unidos. Aquí hay una foto de la distribución aérea del aeropuerto y algunas de las firmas que tuvieron que hacer en la construcción del set para que parezca convincente.

prevnext
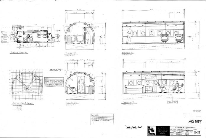
Avión de DuJour

Una escena clave de la película tiene lugar en el avión privado, donde DuJour es abandonado para estrellarse y morir por su gerente (Alan Cumming) después de que sospechan de una conspiración en la que él (y el piloto, aparentemente) son cómplices. Puedes ver algunas miradas en el avión DuJour aquí.

prevnext
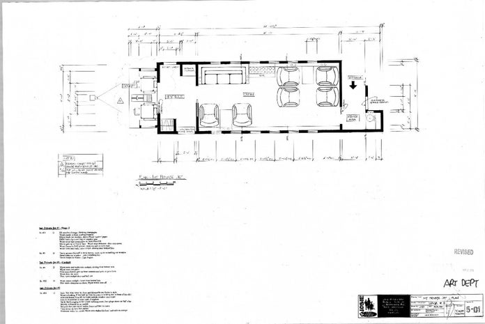
El avión de los gatitos

Los Pussycats tienen el mismo avión privado que DuJour, básicamente (menos el daño del choque), pero hay algunos avisos (incluida la ubicación de los personajes en las maquetas) que muestran que el “https://comicbook.com/movies / news / exclusive-josie-and-the-pussycats-set-blueprints-riverdale / # 2 “jet es el jet Josie.

prevnext
El tiempo vuela

Había un montón de planos para varias cosas relacionadas con el avión y el aeropuerto en el lote que conseguimos tener en nuestras manos. Eso tiene sentido, porque aunque esa no fue una gran parte de la película, fue una parte difícil de filmar.

prevnext
Bienvenido a riverdale

La primera mitad de la película ocurre en gran parte en Riverdale, mientras la banda toca, es molestada por los lugareños y es descubierta por un agente con un motivo oculto. Puedes ver algunos de los letreros de Riverdale aquí.

prevnext
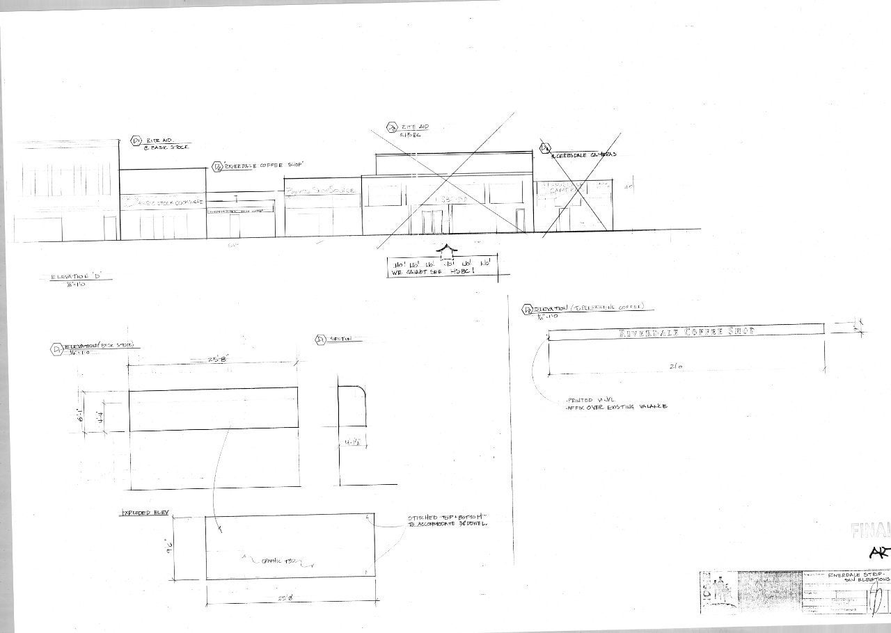
Más de la franja de Riverdale

Echemos un vistazo a algunos de los diseños y algunos de los logotipos de la franja de Riverdale. Interviene en los comentarios a continuación, o contáctame en @russburlingame en Twitter, si puedes encontrar el que no hizo la película.

prevnext
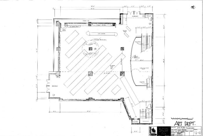
Megaregistros

Poco después de la pérdida de DuJour (pero antes del descubrimiento de los Pussycats, Wyatt Frame (Cumming) se dirigió a una megatienda propiedad de Megarecords para tocar una melodía final de DuJour y evaluar la respuesta de los adolescentes de Riverdale.
prevnext
El video musical

En una de las secuencias más memorables de la película, la banda está trepando LITERALMENTE Cartelera listas como su primer single despega. Y aquí están los planes de cómo lo hicieron.
prev
